,
E-Mail Adresse
info@busemann-schremmer.de
Rufen Sie an
05131 / 4532691
Kontakt

Attraktives Wohn- und Geschäftshaus in der Fußgängerzone von Neustadt a. Rbge.

31535 Neustadt am Rübenberge, Zweifamilienhaus zum Kauf

Anlagen / Links

Kontaktdaten

Sabine Frey, B&S Immobilien Service GmbH

Objektdaten

  • Objekt-ID
    20232698
  • Objekttypen
    Haus, Zweifamilienhaus
  • Adresse
    31535 Neustadt am Rübenberge
    Niedersachsen
  • Wohnfläche ca.
    168,90 m²
  • Grund­stück ca.
    141 m²
  • Zimmer
    8
  • Schlafzimmer
    6
  • Badezimmer
    2
  • Wesentlicher Energieträger
    Gas
  • Baujahr
    1910
  • Zustand
    sanierungsbedürftig
  • Status
    vermietet
  • Verfügbar ab
    sofort
  • Käufer­provision
    3,57 % inkl. ges. MwSt.
    Die Provision ist verdient und fällig nach notarieller Beurkundung des Kaufvertrages.
  • Kaufpreis
    429.000 EUR

Ausstattung / Merkmale

  • ✓ Keller

Energieausweis

  • Energieausweistyp
    Bedarfs­ausweis
  • Ausstellungsdatum
    30.01.2025
  • Gültig bis
    29.01.2035
  • Gebäudeart
    Wohngebäude
  • Baujahr
    1910
  • Primärenergieträger
    Gas
  • Energie­effizienz­klasse
    G

Objekt­beschreibung

Beschreibung

Wohn- und Geschäftshaus in zentraler Innenstadtlage von Neustadt am Rübenberge. Das um ca. 1910 errichtete Gebäude befindet sich in markanter Ecklage direkt am Eingang zur Fußgängerzone und bietet eine gute Sichtbarkeit sowie vielseitige Nutzungsmöglichkeiten.
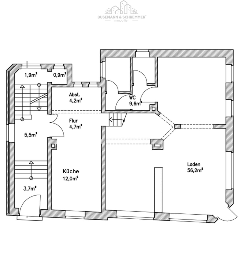
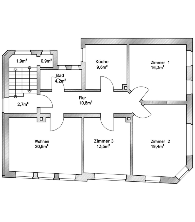
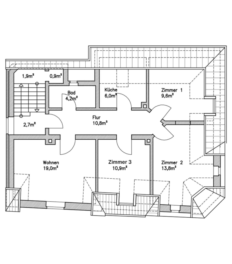
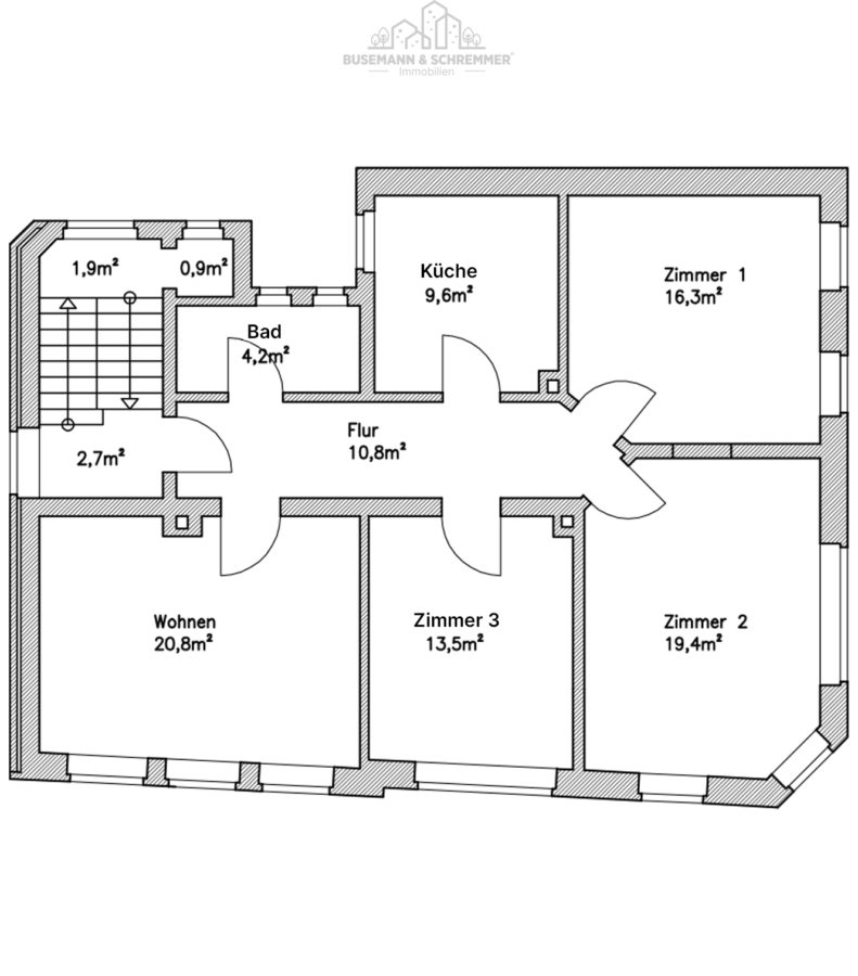
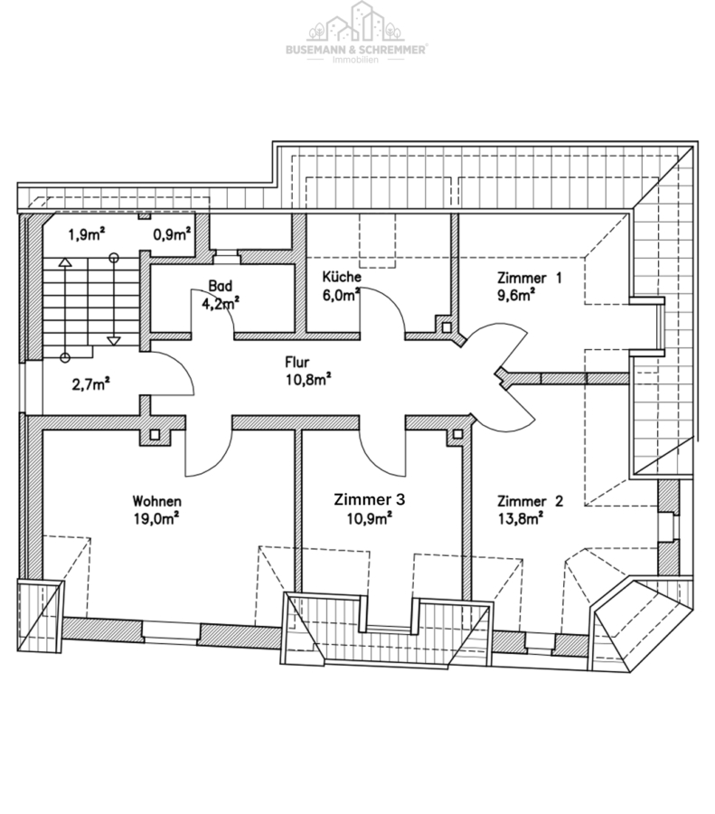
Im Erdgeschoss befindet sich eine Gewerbeeinheit, die derzeit gastronomisch genutzt wird. Der Mietvertrag vom 01.12.2025 ist befristet auf 5 Jahre und kann vom Mieter noch mal 5 Jahre verlängert werden. Kaltmiete € 1.500,00. In den oberen Etagen liegen zwei Wohneinheiten im 1. Obergeschoss und im Dachgeschoss. Beide Wohnungen stehen leer und sind renovierungs- bzw. modernisierungsbedürftig.
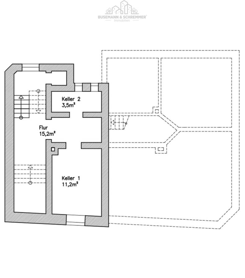
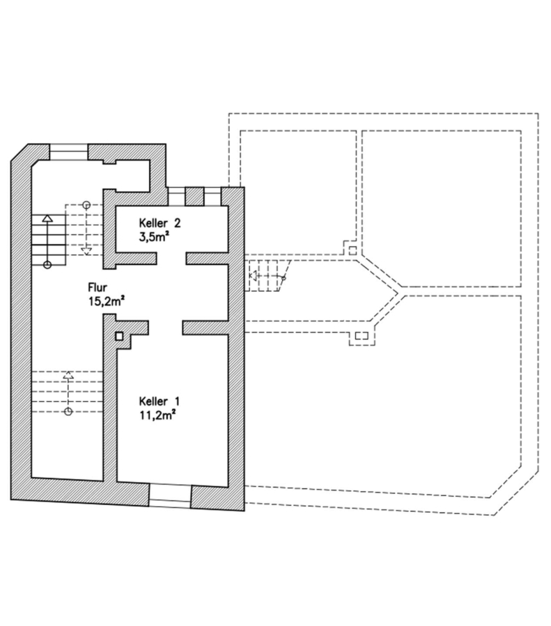
Das gesamte Objekt weist Modernisierungsbedarf auf, insbesondere im Bereich Dach, Fenster, Haustechnik sowie Elektro- und Sanitärinstallationen. Die Wohnfläche beträgt ca. 255 m², hinzu kommen ca. 86 m² Gewerbefläche im Erdgeschoss. Das Gebäude ist teilunterkellert und verfügt über einen nicht ausgebauten Spitzboden.
Eine interessante Immobilie mit Entwicklungspotenzial in gefragter Innenstadtlage.

Ein ausführliches Exposé mit weiteren Informationen und zahlreichen Fotos erhalten Sie gern auf Anfrage.

Sonstiges

Alle Angaben sind ohne Gewähr und basieren ausschließlich auf Informationen, die uns übermittelt wurden. Wir übernehmen keine Gewähr für die Vollständigkeit, Richtigkeit und Aktualität dieser Angaben.

Lage

Die Immobilie befindet sich in zentraler Innenstadtlage von Neustadt am Rübenberge, in unmittelbarer Nähe zur Fußgängerzone. Durch die markante Ecklage bietet das Objekt eine sehr gute Sichtbarkeit sowie eine attraktive Anbindung an das städtische Umfeld. Einkaufsmöglichkeiten, Gastronomie, Ärzte, Banken und weitere Einrichtungen des täglichen Bedarfs sind fußläufig erreichbar.
Auch der öffentliche Nahverkehr ist gut angebunden. Der Bahnhof Neustadt am Rübenberge mit Verbindungen Richtung Hannover und Nienburg ist in kurzer Zeit erreichbar. Über die nahegelegenen Bundesstraßen sowie die Autobahnanbindung besteht zudem eine gute Erreichbarkeit der Landeshauptstadt Hannover und der gesamten Region. Insgesamt bietet die Lage eine interessante Kombination aus zentralem Stadtleben, Infrastruktur und guter Verkehrsanbindung.

Die dargestellte Position der Immobilie ist nur eine ungefähre Angabe.

Direktanfrage

Die Informationen zur Verarbeitung personenbezogener Daten gemäß Art. 13 DS-GVO können Sie hier zur Kenntnis nehmen.

* Pflichtangaben
 SSL-verschlüsselt
Immobiliendaten-Import und Darstellung für WordPress: WP-ImmoMakler

Nur noch ein Schritt entfernt...

1x1 Hausverwaltungen

Die Informationen zur Verarbeitung personenbezogener Daten gemäß Art. 13 DS-GVO können Sie hier zur Kenntnis nehmen.

Kostenloses Erstgespräch für die Energieberatung buchen.

Professionelle & zuverlässige Energieberatung – mehrfach zertifiziert & top bewertet. Jetzt unverbindlich & kostenlos beraten lassen!

Mehr dazu

Nur noch ein Schritt entfernt...

1x1 Privat

Die Informationen zur Verarbeitung personenbezogener Daten gemäß Art. 13 DS-GVO können Sie hier zur Kenntnis nehmen.