,
E-Mail Adresse
info@busemann-schremmer.de
Rufen Sie an
05131 / 4532691
Kontakt

Doppelhaushälfte mit großem Garten, Doppelgarage & ausgebautem Keller in Hannover-Misburg

30629 Hannover, Doppelhaushälfte zum Kauf

Virtueller Rundgang

Anlagen / Links

Kontaktdaten

Sabine Frey, B&S Immobilien Service GmbH

verkauft

Dieses Objekt ist zur Zeit leider nicht verfügbar.

Objektdaten

  • Objekt-ID
    20232313
  • Objekttypen
    Doppelhaushälfte, Haus
  • Adresse
    30629 Hannover
    Niedersachsen
  • Etagen im Haus
    2
  • Wohnfläche ca.
    125 m²
  • Grund­stück ca.
    790 m²
  • Zimmer
    4
  • Schlafzimmer
    2
  • Badezimmer
    1
  • Balkone
    1
  • Küche
    Einbauküche
  • Heizungsart
    Zentralheizung
  • Wesentlicher Energieträger
    Öl
  • Baujahr
    1954
  • Letzte Modernisierung
    2023
  • Zustand
    gepflegt
  • Stellplätze
    2
  • Käufer­provision
    3,57 % inkl. ges. MwSt.
    Die Provision ist verdient und fällig nach notarieller Beurkundung des Kaufvertrages.

Ausstattung / Merkmale

  • ✓ Abstellraum
  • ✓ Badewanne
  • ✓ Balkon
  • ✓ Dusche
  • ✓ Einbauküche
  • ✓ Garten/Gartennutzung
  • ✓ Gäste-WC
  • ✓ Keller
  • ✓ Tageslichtbad

Energieausweis

  • Energieausweistyp
    Bedarfs­ausweis
  • Ausstellungsdatum
    20.06.2025
  • Gültig bis
    19.06.2035
  • Gebäudeart
    Wohngebäude
  • Baujahr
    1954
  • Primärenergieträger
    Öl
  • Endenergie­bedarf
    218,30 kWh/(m²·a)
  • Energie­effizienz­klasse
    G
0 25 50 75 100 125 150 175 200 225 250+ H G F E D C B A A+ H G F E D C B A A+ Endenergiebedarf 218,30 kWh/(m²·a)

Objekt­beschreibung

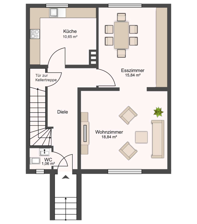
Diese gepflegte Doppelhaushälfte in ruhiger Lage von Hannover-Misburg bietet rund 125 m² Wohnfläche, ein ca. 790 m² großes Grundstück, einen ausgebauten Keller sowie eine große Doppelgarage. Im Erdgeschoss befinden sich eine Küche mit Einbauküche, ein Gäste-WC sowie ein großzügiger Wohn- und Essbereich.
Im Dachgeschoss erwarten Sie zwei Schlafzimmer und ein großes Badezimmer mit Wanne, Dusche und zwei Fenstern. Der Spitzboden ist über eine Luke erreichbar und bietet zusätzlichen Stauraum. Im Keller befinden sich ein wohnlich nutzbarer Raum (z. B. Büro), ein Heizungsraum und eine Waschküche mit Dusche – mit direktem Zugang zum Garten.
Der Außenbereich punktet mit einer Terrasse, einem Gartenhaus samt Grillplatz, einem separaten Geräteschuppen sowie einem eigenen Brunnen zur Gartenbewässerung. Die großzügige Einfahrt und die Doppelgarage runden das Angebot ab.
Das Haus wurde laufend modernisiert, unter anderem mit dreifach verglasten Fenstern, neuer Öl-Brennwertheizung (2023), Einblasdämmung der Außenwände und elektrischen Außenjalousien. Eine Immobilie mit viel Platz, Charme und hervorragender Substanz – ideal für Familien oder Paare mit Platzbedarf.
Ein ausführliches Exposé mit weiteren Informationen und zahlreichen Fotos erhalten Sie gern auf Anfrage.

Lage

Die Immobilie liegt in einem ruhigen, gewachsenen Wohngebiet im beliebten Stadtteil Hannover-Misburg. Einkaufsmöglichkeiten, Schulen, Kitas und Ärzte sind schnell erreichbar. Die Anbindung an Bus und Stadtbahn ist sehr gut, ebenso die Nähe zu Erholungsgebieten wie dem Misburger Wald oder dem Mittellandkanal. Eine ideale Kombination aus ruhiger Lage und guter Infrastruktur.

Die dargestellte Position der Immobilie ist nur eine ungefähre Angabe.

Immobiliendaten-Import und Darstellung für WordPress: WP-ImmoMakler

Nur noch ein Schritt entfernt...

1x1 Hausverwaltungen

Die Informationen zur Verarbeitung personenbezogener Daten gemäß Art. 13 DS-GVO können Sie hier zur Kenntnis nehmen.

Kostenloses Erstgespräch für die Energieberatung buchen.

Professionelle & zuverlässige Energieberatung – mehrfach zertifiziert & top bewertet. Jetzt unverbindlich & kostenlos beraten lassen!

Mehr dazu

Nur noch ein Schritt entfernt...

1x1 Privat

Die Informationen zur Verarbeitung personenbezogener Daten gemäß Art. 13 DS-GVO können Sie hier zur Kenntnis nehmen.